คอนโดเล็ก พื้นที่ไม่พอ ไม่อยากให้ห้องดูรก ไม่อยากให้ห้องดูอึดอัด สารพัดปัญหาที่ผู้อยู่อาศัยในคอนโดหรืออพาร์ทเม้นท์ขนาดเล็กเป็นกังวล ซึ่งปัญหาเหล่านั้นจะหมดไป หากเราเจอไอเดียตกแต่งภายในที่ถูกใจ และสามารถนำไปประยุกต์ใช้กับห้องเราได้จริงๆ นะคะ
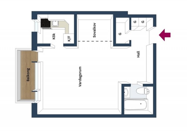
วันนี้เลยขอนำเอาตัวอย่างไอเดียตกแต่งห้องขนาด 29 ตร.ม. ในโกเธนเบิร์ก ประเทศสวีเดน ซึ่งตกแต่งภายในในสไตล์สแกนดิเนเวียได้อย่างลงตัวมาฝากให้ได้ชมกันค่ะ บรรยากาศภายในสว่าง โปร่ง และสบายตา โดยการใช้โทนสีขาวและเทาเข้ามาตกแต่งพื้นที่ภายในดูกว้างขวางขึ้นเยอะ เมื่อมีเตียงนอนเป็นชั้นลอยขึ้นไปด้านบน คล้ายกับเตียงสองชั้น ส่วนบริเวณด้านล่างนั้นก็เลือกใช้พื้นที่ให้คุ้ม ปรับให้เป็นส่วนของห้องทำงานกันไป ถือว่าเป็นการใช้พื้นที่ภายในบ้านให้น้อยลงไป ทำให้ดูเหมือนมีพื้นที่เหลือเยอะขึ้น บริเวณของห้องนั่งเล่นและรับประทานอาหารจึงดูกว้างขึ้นมา ซึ่งก็เป็นไอเดียที่น่าสนใจไม่เบานะคะ สำหรับใครที่มีห้องขนาดเล็กอยู่ ลองนำไปประยุกต์ใช้กันดู น่าจะช่วยทำให้ภายในห้องนั้นมีพื้นที่เยอะขึ้น และสบายตา ไม่ดูอึดอัดกันได้ดีทีเดียว
ชมภาพทั้งหมดในรูปแบบ Gallery รูปภาพได้ที่ด้านล่างนี้ค่ะ










