ไอเดียตกแต่งบ้านสไตล์โมเดิร์น เป็นอีกสไตล์ที่หลายคนชื่นชอบและนิยมเลือกนำมาตกแต่งบ้านสมัยใหม่กันไม่น้อย ดังนั้นในวันนี้เราก็เลยนำไอเดียตกแต่งบ้านสไตล์นี้ในฮ่องกงที่เห็นว่าน่าสนใจมาฝากให้ได้ชมกันดูด้วยค่ะ
สำหรับบ้านนี้ที่เรากำลังพาคุณไปชมนั้น ตกแต่งออกแบบโดยบริษัท Millimeter Interior Design ในฮ่องกง โดยการตกแต่งภายในบ้านเน้นไปที่สไตล์โมเดิร์น โทนสีเทาและขาวเป็นหลัก
โดดเด่นด้วยนำเอาซูปเปอร์คาร์สุดหรูอย่างเฟอร์รารี่มาจอดในโรงรถ ซึ่งเป็นโรงรถพิเศษตรงที่เป็นส่วนหนึ่งของด้านในบ้านหลังนี้นั่นเอง และนอกจากจะเป็นโรงรถภายในบ้านเฉยๆ ยังเป็นโรงรถที่มีกระจกใสกรุรอบ ทำให้ที่จอดรถเฟอร์รารี่คันหรู เป็นเสมือนโชว์รูมรถซูปเปอร์คาร์คันนี้ โชว์ตกแต่งอยู่กลางบ้าน ซึ่งโรงรถนี้สามารถจอดรถได้ทั้งหมด 2 คันด้วยกัน แถมเรายังสามารถมองเห็นรถหรูที่จอดอยู่ในส่วนของห้องนั่งเล่นได้ด้วยนั่นเองค่ะ หรูเลิศมากๆ เลยว่ามั้ยล่ะ
และไม่เพียงเท่านั้นนะคะ บ้านสุดโมเดิร์นหลังนี้ ยังมีการเล่นระดับการตกแต่งส่วนต่างๆ ของบ้านได้อย่างน่าสนใจด้วยค่ะ โดยห้องครัวนั้นจะตกแต่งอยู่ใต้บริเวณที่จอดรถอีกทีหนึ่ง เล่นระดับลึกลงไปด้านใต้ดิน บริเวณห้องนั่งเล่นก็อยู่บริเวณพื้นห้องอีกชั้นหนึ่ง โต๊ะรับประทานอาหารก็สามารถดึงขึ้นมาจากพื้นปูนซีเมนต์ ยกขึ้นมากลายมาเป็นโต๊ะดีไซน์โมเดิร์นเท่ๆ ได้ด้วย เจ๋งจริงๆ
ห้องนั่งเล่นก็มีด้วยกัน 2 ห้อง หนึ่งห้องในบริเวณห้องรับประทานอาหาร และอีกหนึ่งห้องซึ่งอยู่อีกด้านนั้นก็ตกแต่งแบบโมดิร์นด้วยโซฟาร่วมสมัยสีขาวสวยงาม
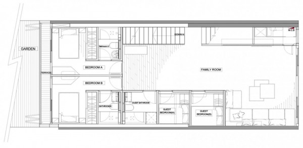
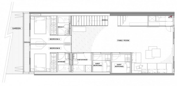
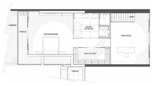
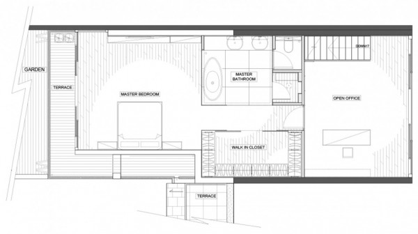
บริเวณห้องทำงาน ห้องน้ำ ห้องนอน ภายในบ้านหลังนี้นั้นก็ตกแต่งได้สวยโมเดิร์นและหรูหรา เห็นแล้วน่าอยู่มากๆ เลยทีเดียวเลยค่ะ
นอกจากนี้ยังมีสะว่ายน้ำอยู่บริเวณด้านหน้าของบ้านให้ได้พักผ่อน ว่ายน้ำผ่อนคลายอารมณ์และออกกำลังกายกันด้วย ช่างเป็นบ้านที่ตกแต่งได้โมเดิร์นและสวยเลิศจริงๆ เลย เห็นแล้วใครชอบกันบ้างคะ ถ้าชอบก็ลองเก็บไปเป็นไอเดียกันดูได้เลยนะ
ชมภาพทั้งหมดได้ที่ Gallery ด้านล่างนี้ค่ะ






























