ห้องน้ำ เป็นสถานที่ทำให้เราผ่อนคลายได้ไม่ต่างจากห้องนั่งเล่นและห้องนอน แน่นอนว่าเป็นห้องที่สำคัญมากไม่แพ้กัน แม้ว่าจะไม่ได้เป็นห้องรับแขกโดยตรงทั่วไป แต่ก็ถือว่าเป็นห้องที่ทุกคนจำเป็นต้องใช้ ไม่ว่าจะเป็นเจ้าของหรือแขกบ้านก็ตาม ทำให้เจ้าของบ้านหลายคนให้ความสำคัญในการตกแต่งห้องน้ำให้สวยงามเป็นหน้าเป็นตาของบ้านไม่แตกต่างจากห้องอื่นๆ
และสำหรับวันนี้ Livingoops.com ก็มีไอเดียตกแต่งห้องน้ำสวยๆ ที่เห็นแล้วต้องอิจฉามาฝากให้ได้คุณได้ชมกันด้วยล่ะค่ะ สำหรับห้องน้ำห้องนี้ ตกแต่งภายในเหมือนพาเราเข้าไปอยู่ในความหรูหรา มโนไปว่านี่คือห้องน้ำในพระราชวังหรือเปล่า ทำไมถึงได้สวยหรูอลังการเช่นนี้กันนะ ซึ่งความสวยงามของห้องน้ำนี้ก็ต้องยกให้กับดีไซเนอร์ผู้ออกแบบอย่าง Balamatsiuk Oksana เพราะออกแบบห้องน้ำออกมาได้อย่างงดงามและหรูหรา อลังการมากทีเดียวเลยล่ะค่ะ
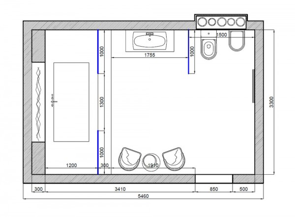
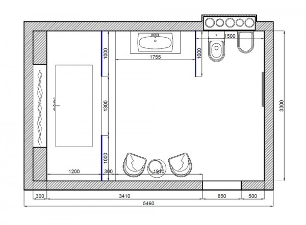
ตกแต่งภายในด้วยพื้นหินอ่อน กำแพงโมเสกสีขาวแลดูเป็นประกายวิบวับเมื่อกระทบกับแสงไฟ โคมไฟอลังการดีไซน์ มีกระจกสลักลายสวยงามกั้นระหว่างอ่างอาบน้ำกับส่วนของห้องน้ำอีกทีหนึ่ง บริเวณอ่างอาบน้ำก็ตกแต่งสวยเลิศด้วยการใช้ไม้ ดูแล้วเรียบหรูไปในตัว มีเตาผิงไฟให้อยู่ด้านข้างกำแพง เปลวไฟร้อนชวนให้รู้สึกอบอุ่น พื้นที่ส่วนห้องน้ำด้านนอกมีเก้าอี้ไว้สำหรับพักผ่อนภายในห้องน้ำอีกที สุขภัณฑ์สีขาวก็ตกแต่งเข้ากับกำแพงโมเสกและพื้นหินอ่อน ตกแต่งออกมาได้สวยงามจริงๆ เลย เห็นแล้วอยากมีห้องน้ำเหมือนพระราชวัง เป็นห้องน้ำในฝันแบบนี้กันบ้างหรือเปล่าคะ…
ที่มา homedsgn













