Wonderland Apartment อพาร์ทเม้นท์สีพาสเทลสวย บรรยากาศละมุน

The-Wonderland-Apartment (11)

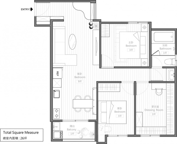
Wonderland Apartment เป็นอพาร์ทเม้นท์ที่ตั้งอยู่ที่เมืองเกาสง ประเทศไตหวัน ซึ่งเพิ่งตกแต่งเสร็จในปี 2014 นี้เองค่ะ โดยมีบริษัท House Design Studio เป็นผู้ออกแบบตกแต่งภายในให้กับตัวอพาร์ทเม้นท์ โดยเน้นไปที่โทนสีพาสเทลหวานๆ อย่างสีฟ้า ชมพู และเหลือง ตกแต่งร่วมกับผนังกำแพงสีขาวสวยงาม

บริเวณห้องนั่งเล่นตกแต่งด้วยโทนสีพาสเทลสดใส มีทั้งโซฟาสีฟ้าอ่อนๆ เก้าอี้สีเหลือง โคมไฟสีชมพู ตกแต่งกำแพงสีขาวด้วยรูปภาพใส่กรอบตกแต่ง ด้านหน้าเป็นทีวี มีกำแพง สีขาวและฟ้าตกแต่งสวยงาม

The-Wonderland-Apartment (8)The-Wonderland-Apartment (10)The-Wonderland-Apartment (7)

ไม่ไกลกันนักมีโต๊ะรับประทานอาหารเล็กๆ ที่ทำจากไม้ และมีขาโต๊ะสีแดงสด จะใช้เป็นมุมทำงานหรือรับประทานอาหารก็ได้ ด้านข้างโต๊ะมีราวชั้นวางของไม้ ที่มีดีไซน์ท่อสีเหลือง อีกข้างหนึ่งเป็นห้องครัวสีขาว

The-Wonderland-Apartment (12)The-Wonderland-Apartment (13)The-Wonderland-Apartment (14)The-Wonderland-Apartment (15)

ห้องนอนภายในอพาร์ทเม้นท์ห้องนี้มีด้วยกัน 2 ห้อง แต่ละห้องก็ตกแต่งแบบเรียบง่าย สวยงาม ถัดมาอีกห้องคือห้องแต่งตัว ตกแต่งด้วยโทนสีขาวและชมพูออกแนวหวานสุดๆ แต่ดูสบายตา ส่วนห้องน้ำนั้นอยู่ระหว่างห้องนอนทั้งสองห้องและห้องแต่งตัว

The-Wonderland-Apartment (16)The-Wonderland-Apartment (18)The-Wonderland-Apartment (20)

นอกจากนี้บริเวณทางเข้าของบ้านยังตกแต่งให้เป็นมุมพักผ่อน นั่งสบายๆ ได้อีกมุมหนึ่งด้วยค่ะ

The-Wonderland-Apartment (3)

เป็นบ้านที่มีบรรยากาศละมุมละไม ดูอ่อนหวาน และน่าอยู่ไม่เบาเลยนะคะ สำหรับใครที่ชอบไอเดียตกแต่งบ้านสไตล์พาสเทลสวยๆ ล่ะก็ บ้านหลังนี้ก็เป็นแบบไอเดียที่น่าสนใจไม่น้อย ลองเก็บไว้เป็นแรงบันดาลใจกันดูนะคะ

ชมภาพทั้งหมดได้ที่ Gallery ด้านล่างนี้่ค่ะ

 

source

ติดตาม Jeab.com
Jeab.com มี LINE แล้วนะ
ติดตามเรื่องราวไลฟ์สไตล์ทันสมัยสำหรับผู้หญิงยุคดิจิตอล ได้ทุกวันผ่าน LINE ID @jeabdotcom
No Comments Yet

Leave a Reply

Your email address will not be published.

You may use these HTML tags and attributes: <a href="" title=""> <abbr title=""> <acronym title=""> <b> <blockquote cite=""> <cite> <code> <del datetime=""> <em> <i> <q cite=""> <s> <strike> <strong>


This site uses Akismet to reduce spam. Learn how your comment data is processed.