ใครอยู่บ้านชั้นเดียวหรืออาศัยอยู่ในอพาร์ทเม้นท์ คอนโดมิเนียมที่มีห้องชั้นเดียวกันบ้างเอ่ย วันนี้เรามีไอเดียดีๆ ของการตกแต่งภายในที่น่าสนใจมาฝากคุณให้ได้ชมกันด้วย หากใครที่อยู่บ้านชั้นเดียวหรืออยู่ในคอนโด อพาร์ทเม้นท์ที่มีแค่ชั้นเดียว และเพดานก็สูงอยู่แล้ว แต่อยากจะมีห้องสองชั้นภายในกันบ้าง ก็ลองมาชมไปพร้อมกับไอเดียแต่งบ้านในวันนี้ที่เรานำมาฝากกันดูนะคะ เพราะไอเดียนี้เขาเปลี่ยนจากห้องที่เคยเป็นร้านค้าขายของหนึ่งห้อง ซึ่งมีแค่ชั้นเดียว ให้กลายเป็นบ้านส่วนตัวที่มี 2 ชั้นอยู่ภายในพื้นที่เดิมนั่นเองค่ะ ว่าแล้วไอเดียตกแต่งนี้จะเป็นอย่างไรกันนะ เราลองมาชมกันดูพร้อมกันเลยดีกว่า
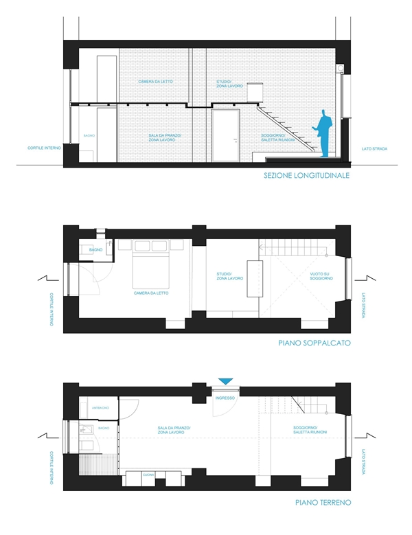
สำหรับไอเดียนี้ บริษัท R3 Architetti ได้เปลี่ยนร้านค้าขายของให้กลายเป็นบ้านพักส่วนตัวที่น่าอยู่ จากห้องชั้นเดียวกลายเป็น 2 ชั้น เนื่องจากเพดานภายในห้องๆ นี้นั้นสูง จึงทำให้การแบ่งออกมาเป็นชั้น 2 ชั้น ไม่ได้ทำให้ดูน่าอึดอัดแต่อย่างไร แต่กลับทำให้ดูอบอุ่นและน่าอยู่มากขึ้น และไม่ทำให้พื้นที่ด้านล่างเต็มไปด้วยเฟอร์นิเจอร์จากหลายส่วนจนทำให้ดูอึดอัด ขณะเดียวกันก็ไม่ทำให้เพดานสูงโล่งจนเกินไปด้วยค่ะ ซึ่งการตกแต่งภายในบ้านนี้นั้น เขาแบ่งให้พื้นที่ชั้น 2 เป็นส่วนของห้องนอนใต้หลังคา และบริเวณชั้นล่างจะเป็นส่วนของห้องนั่งเล่นพักผ่อน ห้องครัว และห้องน้ำ มีบันไดสีดำพาขึ้นสู่บริเวณห้องนอนด้านบน ตกแต่งภายในด้วยสไตล์ร่วมสมัย เฟอร์นิเจอร์ไม้ ใช้โทนสีขาว ครีม สบายตา บรรยากาศน่าอยู่ดีทีเดียวเลยล่ะค่ะ ว่าแล้วก็ลองมาชมภาพไอเดียกันดูเลยดีกว่า
ใครที่ชอบไอเดียนี้ อยากเปลี่ยนบ้านชั้นเดียวให้กลายเป็นสองชั้นภายในกันบ้าง ก็ลองชมไอเดียนี้ไว้เป็นแรงบันดาลใจไว้ประยุกต์ตกแต่งกันดูก็ได้นะคะ
ชมภาพทั้งหมดได้ที่ Gallery ภาพด้านล่างนี้ค่ะ






















