เวลานึกถึงไอเดียตกแต่งบ้านสไตล์สแกนดิเนเวีย เรามักเห็นภาพการตกแต่งที่สว่างสดใส บรรยากาศสบายๆ อบอุ่น ใช้โทนสีและของตกแต่งให้ความรู้สึกอบอุ่นขึ้นมาเป็นอันดับแรกๆ เห็นแล้วก็อดชอบไอเดียเหล่านั้นไม่ได้ ทำเอาอยากหาแรงบันดาลใจมาตกแต่งห้องแบบนี้บ้างจริงๆ เลยเชียว วันนี้เราก็ขอมาสนองนิ๊ดให้กับทุกคนกันค่ะ สำหรับใครที่กำลังมองหาไอเดียตกแต่งน่ารักๆ ให้กับบ้านหรือห้องของตนเองกันอยู่ ลองมาชมไอเดียของเพ้นท์เฮ้าส์หลังนี้ไว้เป็นแรงบันดาลใจกันดู ขอบอกว่าตกแต่งออกมาทั้งน่ารักและสดใสมากๆ เลยล่ะค่ะ
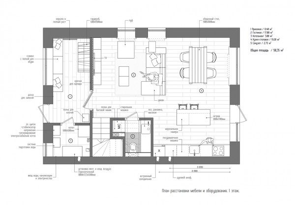
เพ้นท์เฮ้าส์ที่เราพามาชมในวันนี้ เป็นเพ้นท์เฮ้าส์สำหรับครอบครัวที่อยู่กันทั้งหมด 4 คน ตกแต่งออกแบบโดยบริษัท INT2 architecture มีทั้งหมดด้วยกัน 3 ชั้น บริเวณด้านล่างเป็นส่วนของห้องครัว อยากบอกว่าน่ารักมากๆ เลยล่ะค่ะ ตกแต่งด้วยไม้สีอ่อน บรรยากาศสบายๆ สไตล์สแกนดินเวีย โทนสีสดใส เคาน์เตอร์ครัวไม้สีอ่อน ตัดกับเก้าอี้เคาน์เตอร์ทรงสูงสีแดงที่ดูแอบวินเทจ เท่ๆ กำแพงส่วนครัวตกแต่งเป็นกำแพงกระดานดำ มีชอล์กสีขาวสร้างลวดลาย และ ข้อความให้กับบริเวณกำแพงส่วนนี้
ใกล้กันเป็นส่วนของห้องรับประทานอาหาร ตกแต่งด้วยไม้สีอ่อน โทนเดียวกับห้องครัว บริเวณใกล้ๆ ตกแต่งด้วยกระถางต้นไม้เล็กๆ ริมหน้าต่าง และ ภาพวาดศิลปะติดกำแพง กับเก้าอี้โมเดิร์นสีขาวและเทา บรรยากาศสบายๆ สวยงาม ห้องนั่งเล่นที่อยู่ไม่ไกลตกแต่งโทนสีเทา โซฟาร่วมสมัย
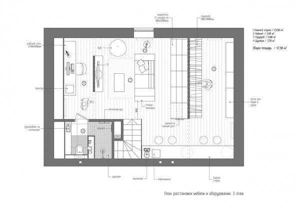
ชั้นสองเป็นส่วนของห้องนอน มีห้องนอนทั้งหมด 3 ห้อง แบ่งเป็นห้องนอนผู้ใหญ่ และห้องนอนเด็ก ใช้ห้องอาบน้ำร่วมกัน ตกแต่งแบบเรียบง่าย สบายตา ห้องนอนผู้ใหญ่ตกแต่งแบบเรียบง่าย ทันสมัย ส่วนห้องนอนเด็กตกแต่งด้วยโทนสีสบายตา น่ารักมากๆ เลยล่ะค่ะ มีมุมโต๊ะเก้าอี้เล็กๆ สำหรับเด็กได้วาดเขียน ทำงานกันด้วย
ส่วนของชั้นสาม เป็นบริเวณของห้องใต้หลังคา ตกแต่งเป็นมุมพักผ่อนสบายๆ ห้องนั่งเล่น มีตู้หนังสือ มุมคาเฟ่เล็กๆ สำหรับชงกาแฟ ทำเครื่องดื่ม นั่งดื่มสบายๆ ในห้องกันด้วย นอกจากนี้บริเวณนี้ยังมีห้องทำงาน และห้องน้ำใต้หลังคา รวมอยู่ด้วยเช่นเดียวกัน บรรยากาศสบายๆ น่าอยู่ทุกชั้นแบบนี้ แถมตกแต่งได้สวยงาม เราก็หวังว่าจะเป็นไอเดียตกแต่งบ้านที่น่าสนใจและเป็นแรงบันดาลใจให้กับคุณได้ดีทีเดียวนะคะ ว่าแล้วใครชอบก็มาชมภาพไอเดียตกแต่งบ้านหลังนี้กันต่อเลยดีกว่าค่ะ
ชมภาพทั้งหมดที่ Gallery ภาพด้านล่างนี้ค่ะ
ที่มา : http://www.home-designing.com/2014/11/a-duplex-penthouse-designed-with-scandinavian-aesthetics-industrial-elements-includes-floor-plans







































