ใครมีห้องคอนโดขนาดเล็กๆ กันบ้างคะ หากว่าคุณกำลังคิดไม่ตกว่าจะตกแต่งภายในห้องคอนโดเล็กๆ ของตนเองได้อย่างไรกันดี ลองมาชมไอเดียตกแต่งคอนโดขนาดเล็ก 25 ตร.ม. ที่วันนี้เรานำมาฝากให้ได้ชมกันดูเป็นไอเดีย ไว้ไปใช้เป็นแรงบันดาลใจกันดูสิคะ เผื่อจะได้ไอเดียดีๆ ไว้ไปตกแต่งภายในห้องขนาดเล็กของคุณกันบ้าง
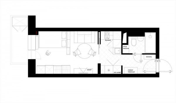
สำหรับไอเดียนี้ เป็นการตกแต่งห้องคอนโดสำหรับผู้อยู่อาศัยเพียงคนเดียว ดังนั้นขนาดพื้นที่คอนโดจึงไม่ค่อยมีพื้นที่ใช้สอยมากนัก ตกแต่งด้วยโทนสีขาวและเทา มีประตูบานเลื่อนกั้นระหว่างพื้นที่ห้องนั่งเล่นเล็กๆ กับส่วนของห้องครัว พื้นที่รับประทานอาหารก็ใช้พื้นที่เดียวกันกับบริเวณนั่งเล่น มีโต๊ะกินข้าวตั้งอยู่ด้านหน้าโซฟาสำหรับสองที่ ประหยัดพื้นที่ตู้วางหนังสือด้วยการติดตู้หนังสือไว้ที่บริเวณกำแพงเหนือโซฟานั่งเล่นขึ้นไป
บริเวณตู้วางของด้านข้างโซฟานั่งเล่น ก็เป็นส่วนกั้นห้องระหว่างห้องนั่งเล่นและห้องนอนให้เป็นสัดส่วน เป็นมุมของโซฟาเดย์เบดสำหรับใช้นอน พนักกั้นขอบโซฟาเดย์เบดก็ใช้เป็นโต๊ะสำหรับนั่งทำงานกันไป อีกฝั่งตรงข้ามโซฟาเดย์เบดก็เป็นพื้นที่ของตู้เสื้อผ้าและตู้เก็บของเรียงกันยาวตามแนวกำแพง บรรยากาศภายในอบอุ่นสบายๆ เห็นแล้วน่าอยู่ไม่เบาเลยเนอะ
ซึ่งจากไอเดียตกแต่งภายในคอนโดห้องนี้ เราจะเห็นว่ามีการเลือกใช้เฟอร์นิเจอร์ที่สามารถใช้งานร่วมกันได้ในหลายๆ หน้าที่มาใช้ร่วมกัน ก็ช่วยทำให้ประหยัดจำนวนเฟอร์นิเจอร์ที่จะมาใช้ตกแต่งภายในห้องลดลงไป ส่งผลให้ห้องเราไม่ดูอึดอัดและรกไปด้วยเฟอร์นิเจอร์มากเกินจำเป็นด้วยเหมือนกันนะคะ ว่าแล้วใครที่ชอบสไตล์การตกแต่งบ้านแนวนี้ ลองเก็บไอเดียตกแต่งภายในคอนโดเล็กๆ ห้องนี้ไว้ไปประยุกต์ใช้กันดูได้เลย
ชมภาพทั้งหมดในรูปแบบ Gallery รูปภาพได้ที่ด้านล่างนี้ค่ะ





























