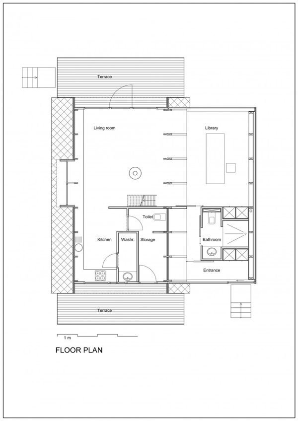
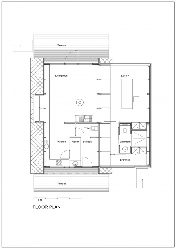
ไอเดียแต่งบ้านวันนี้ เราจะพาคุณมาชมบ้านรูปทรงแปลกๆ ที่ไม่ค่อยได้พบเห็นทั่วไปกันกับดีไซน์บ้านสามเหลี่ยม สี่เหลี่ยมหลังนี้ที่มีชื่อว่า Extension House vB4 บ้านโมเดิร์นทรงแปลกใน Brecht ประเทศเบลเยี่ยม ซึ่งเป็นหนึ่งในโครงการออกแบบที่อยู่ของบริษัท dmvA ตั้งอยู่บนลานกว้าง สนามหญ้าล้อมรอบ มีต้นไม้สูงใหญ่อยู่รอบๆ ทำให้วิวทิวทัศน์รอบคตัวบ้านที่เห็นเต็มไปด้วยสีเขียวจากต้นไม้ ให้ความรู้สึกสดชื่นได้ดี ราวกับอยู่ท่ามกลางธรรมชาติ
ตัวบ้านทรงแปลกนั้นเป็นรูปทรงสามเหลี่ยมต่อกับสี่เหลี่ยมผืนผ้า ดูแล้วแปลกตา ตรงที่บริเวณส่วนบ้านที่เป็นรูปสามเหลี่ยมนั้นมีฐานเกือบติดพื้นเลยนี่แหละค่ะ นอกจากนี้ยังมีชานไม้ให้นั่งพักผ่อนด้านนอกชมวิวได้ด้วย ตกแต่งบริเวณด้านนอกด้วยสีดำ ภายในแต่งเติมด้วยเฟอร์นิเจอร์ร่วมสมัย สวยงามด้วยสีขาว มองจากภายนอกเข้าไปจะเห็นสีดำและขาวตัดกันสวยงาม นอกจากภายในจะแต่งด้วยสีขาวแล้ว ยังมีสีเหลืองเขียวมะนาวแซม ตกแต่งอยู่ด้วย ดูแล้วสว่าง และ สดชื่นดีไม่น้อย เห็นแล้วก็สวยไปอีกแบบนะคะ บ้านทรงนี้ ใครชอบก็เก็บไปเป็นไอเดียกันได้ค่ะ
ชมภาพไอเดียตกแต่งบ้านหลังนี้ืัทั้งหมดได้ที่ Gallery ภาพด้านล่างนี้ค่ะ




















